导航
首页
产品展示
工程案例
新闻资讯
关于我们
联系我们
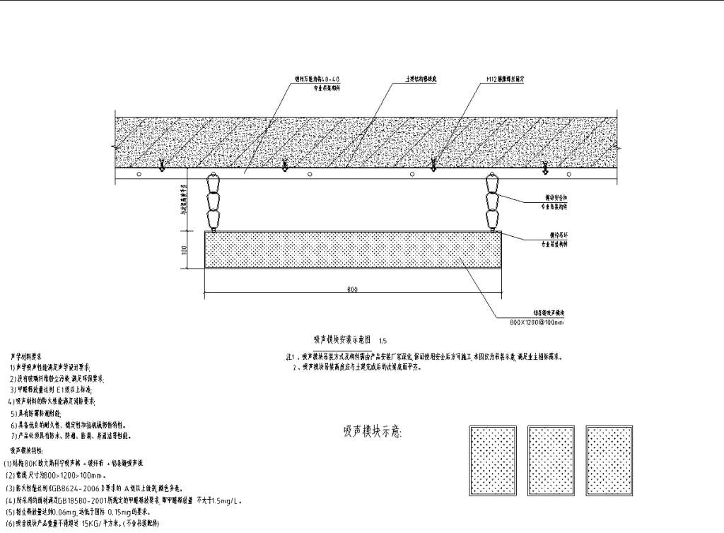
墙体吸声体
版权归有: 佛山雅瑟声学建筑材料有限公司